Обяви За нас Контакти
Продава КЪЩА
град Благоевград, Струмско
278 000 €
543 720.74 лв.

(917 €, 1 793.50 лв./m2)
Не се начислява ДДС
История на цената
Коригирана в 10:13 на 5 февруари, 2026 год.
Обявата е посетена 1881 пъти.
Площ:
303 m2
Двор:
385 m2
Етаж:
0
Газ:
НЕ
ТEЦ:
НЕ
Строителство:
Тухла, Ще бъде въведен в експлоатация 2026 г.

Описание на имота:


Астера Имоти предлага Еднофамилна двуетажна къща + таван, с РЗП от 302,60 кв.м., заедно с парцел от 385 кв.м., за продажба, в кв. Струмско на гр. Благоевград. Къщата е в процес на строителство и със срок на предаване в завършен вид до 31.03.2026г. Състои се от:
- 1-ви етаж, 76,90 кв.м.: антре, дневна с кухненски бокс, склад, баня с тоалетна, стълбишна клетка;
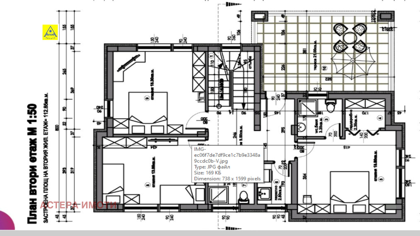
- 2-ри етаж, 112,85 кв.м.: антре, три спални помещения, две бани с тоалетни, мокро помещение, тераса 21 кв.м.;
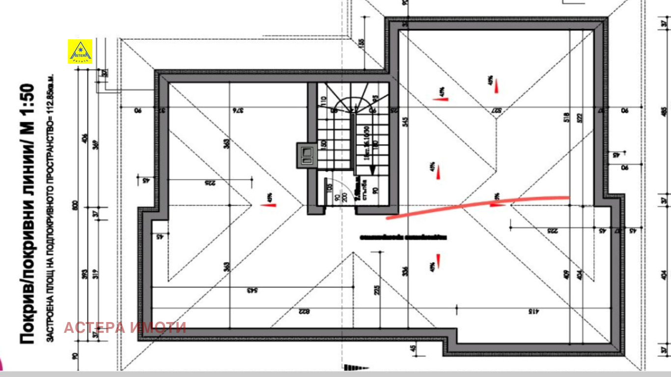
- 3-ти етаж, 112,85 кв.м.: едно общо помещение.
- Двор/парцел, 385 кв.м.: ограден, равен с възможност за закупуването и на съседния парцел, с площ от 431 кв.м.

Имотът разполага с ток, вода и канализация.

ПРЕДАВАНЕ НА АКТ 14 / СТЕПЕН НА ЗАВЪРШЕНОСТ 63%
Спепен на завършеност на обекта:
- Под на плоча (железобетонна);
- Стени на тухла - неизмазани;
- Дограма ПВЦ - висококачествена
- Електрическа и В и К инсталации - неизградени;
- Покрив от дървена конструкция с керемиди напълно завършен
- Вертикална планировка - незавършена
- Партиди за ток и вода.

ПРЕДАВАНЕ НА АКТ 16 / НАПЪЛНО ЗАВЪРШЕН СТРОЕЖ
Спепен на завършеност обекта:
- Под на циментова замазка;
- Стени и Тавани на финна гипсова мазилка;
- Дограма ПВЦ - висококачествена,
- Електрическа и В и К инсталации - до точка и тапа съответно;
- Външна изолация на сградата с дебелина 10 см. стиропор;
- Покрив от дървена конструкция с керемиди напълно завършен
- В завършен вид вертикалната планировка
- Партиди за ток и вода.

Цена на груб строеж (Акт 14/степен на завършеност 63 %): 342.270,25 лева - 175.000 евро
Цена на завършен строеж, с Акт 16: 498.736,65 лева - 255.000 евро

Номер на обява: 2603

Особености
Тухла
С паркинг
За контакт:
0898331948
Брокер:
Владислав Качев
0898331948
Още оферти от брокера: Продава | Дава под наем | Купува | Наема
Агенция:
АСТЕРА ИМОТИ
073893133
АСТЕРА ИМОТИ logo
Медал за прослужено време
В imot.bg от 2016 г.
astera.imot.bg
Адрес:
област Благоевград, гр. Благоевград, ул. 'Братя Миладинови', 1А, вх.Б, ет.0, офис 2
http://www.asteraestate.com
ИЗПРАТИ ЗАПИТВАНЕ
ИЗПРАТИ ЗАПИТВАНЕТО

Продава КЪЩА
град Благоевград, Струмско
Обява: 1j175371446285950

278 000 €
543 720.74 лв.
История на цената
(917 €, 1 793.50 лв./m2)

Не се начислява ДДС
ЗАПАЗИ ОБЯВАТА

Местоположение: град Благоевград, Струмско

Допълнителни данни за имотите в района и сравнение с други райони

Покажи

Период

и 2 месеца

* Средните цени са определени чрез медианна стойност